|
3 POMPALI DİK MİLLİ YANGIN HİDROFORLARI
(Y3 KO 45 SERİSİ) |
|
|
ETNA Y3 KO SERİSİ - 3 POMPALI YANGIN HİDROFORLARI
Sadece Yangın Dolabı İhtiva Eden Tesisatlarda Yangınla Mücadele
için Otomatik Test Sistemli Sesli ve Işıklı Alarmlı Sistemlerdir. |
![]() |
| GENEL ÖZELLİKLER |
| • Elektronik kontrol paneli • Susuz çalışmaya karşı düşük akım koruması
• Susuz çalıştırmayı önleyen 2. koruma (5 m seviye flatörü)
• Ayarlanabilen alçak ve yüksek akım-gerilim koruması
• Faz sırası ve faz yokluğu koruması
• Pompa hazır devrede ve hata durumlarını ekrandan izleyebilme
• Faz gerilimleri ve motor akımlarını ekranda izleyebilme
• Arıza durumunda hata adı ile ekranda okuyabilme
• Haftalık test sistemi, sesli ışıklı alarm
• Emiş ve basma kollektörü, manometre ve basınç şalteri
• Yaylı tip sessiz paslanmaz geri tepme ventili
• Titreşimi engelleyen lastik takozlu ve fırın boyalı çelik şase |
| TEKNİK ÖZELLİKLER |

(TEK POMPA DEBİSİDİR)
| MODEL | GÜÇ |
ANMA AKIMI
A |
DEBİ (m³/h) |
TAVSİYE
EDİLEN
TANK |
||||
| HP | kW | 3x35 | 3x45 | 3x55 | ||||
| Y3 KO 45/3-110 | 3x15 | 3x11 | 3x19,5 | 57 | 53 | 45 | 1000lt | PN10 |
| Y3 KO 45/4-110 | 3x15 | 3x11 | 3x28,5 | 77 | 70 | 60 | 1000lt | PN10 |
| Y3 KO 45/5-150 | 3x20 | 3x15 | 3x29,5 | 95 | 85 | 72 | 1000lt | PN16 |
| Y3 KO 45/6-185 | 3x25 | 3x18,5 | 3x32,5 | 112 | 105 | 88 | 1000lt | PN16 |
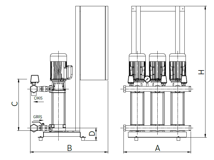
| HİDROFOR BOYUTLARI |

| MODEL | ÖLÇÜLER (mm) | ||||||
| Giriş | Çıkış | A | B | C | D | H | |
| Y3 KO 45/3-110 | DN125 | 4" | 1050 | 1043 | 551 | 190 | 1290 |
| Y3 KO 45/4-110 | DN125 | 4" | 1050 | 1043 | 613 | 190 | 1290 |
| Y3 KO 45/5-150 | DN125 | 4" | 1050 | 1043 | 695 | 190 | 1290 |
| Y3 KO 45/6-185 | DN125 | 4" | 1050 | 1043 | 757 | 190 | 1405 |
| TESLİMAT KAPSAMI |
- 3xDik Milli Santrifüj Pompa
- Üç Pompa Kontrol Panosu
- Manometre
- 3xBasınç Şalteri
- Seviye Flatörü
- Pompa Şasesi
- Emiş - Basma Kollektörleri
- Yukarıda Yer Alan Ürünler Ayrı Ayrı Değil, Set Halinde Teslim Edilmektedir.
| DİKKAT EDİLECEK HUSUSLAR |
- KO Serisi Hidroforlar İle Hidrofor Genleşme Tankı Ayrıca Sipariş Edilmelidir.
- Ürünün Montaj Hizmeti Kullanıcıya Aittir.
- Ürünün Garanti Kapsamına Girmesi İçin İlk Çalıştırmanın ETNA Yetkili Servislerince Yapılması Gerekmektedir.
- Devreye Alma İşlemi Ücretsizdir.
- Yetkili Servis Tarafından Devreye Alınmayan Ürünler Garanti Kapsamı Dışındadır.
Bu ürüne ilk yorumu siz yapın!
Ürün hakkında henüz soru sorulmamış.
Sitemize ilk yorumu siz yapın!
Tavsiye Ürünler
45.025,20 TL
33.768,90 TL
%25 İNDİRİM

